3
2
1900
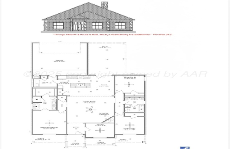
Property Description: This new build is in Myra Park located in Canyon ISD. This well-designed open floor plan offers three bedrooms, two bathrooms, plus an office. The Large living room has vaulted ceilings with decorative beams. The primary suite is isolated with a large walk in closet. Builder is offering up to $7500 in flex cash