4
2
1898
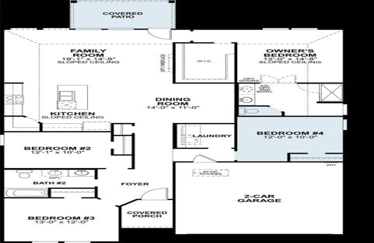
Property Description: Built by M-I Homes. 7015 Winecup Lane, Sanger, TX features a thoughtfully designed single-story home in a welcoming neighborhood. Key Features: • 4 bedrooms with owner’s bedroom in its own private corner • 2 full bathrooms • Front-load garage • Open-concept layout connecting kitchen, dining, and living areas • Optional flex space or study for added versatility This single-story home showcases an open-concept layout that promotes a natural flow between the main living areas, creating a bright and inviting space for daily life and entertaining. The style and durability of luxury vinyl plank flooring guides you throughout the main living spaces. The thoughtfully planned floorplan balances functionality with comfort throughout. The owner’s bedroom in its own private corner provides privacy and easy access, while the additional bedrooms offer flexibility for family, guests, or a home office. Quality finishes and attention to detail enhance the overall livability of the home. Neighborhood & Location Benefits: • Close to local parks and recreational spaces • Family-friendly neighborhood with well-planned streets • Convenient access to nearby schools and amenities • Easy connections to major roads for commuting Schedule your private tour today.