4
4
4413
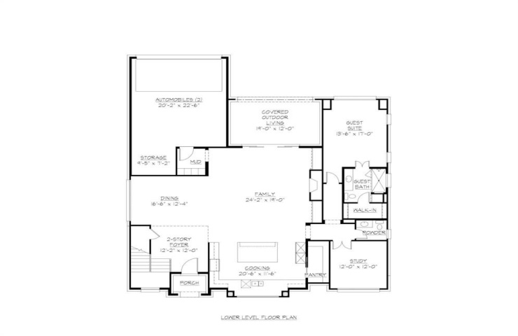
Property Description: Nestled in the sought-after Canyon Creek neighborhood, this Shaddock Custom home presents a rare opportunity to own a brand-new, thoughtfully designed residence in one of Richardson’s most coveted communities. With 4 spacious bedrooms including a luxurious primary suite upstairs and a private guest suite down, the floor plan is tailored for modern living. A dramatic 2-story foyer opens into the Great Room, where a stunning fireplace and custom built-ins create the perfect setting for gatherings. The chef’s kitchen boasts custom cabinetry, an oversized stone island with seating, and upgraded appliances including a built-in refrigerator & freezer. An expansive slider door connects the family room to the covered patio, seamlessly blending indoor and outdoor living. Additional highlights include a tucked-away office for privacy, wood floors throughout, designer tile, and striking lighting fixtures that bring warmth and sophistication to every space. Solid core 8' doors, dual powder baths, and pre-wired surround sound inside and out add convenience and luxury. The garage offers an extra 10 x 6 area ideal for storage or golf cart parking. Upstairs, the primary suite impresses with vaulted ceilings and a spa-like bath featuring a freestanding tub, oversized shower, and dual vanities, plus direct access to the laundry room through the oversized closet. Secondary bedrooms each enjoy private baths and generous flexibility for family or guests. Built with energy-efficient construction and abundant natural light, every detail has been curated to blend timeless craftsmanship with elegance. Located within the highly desirable Canyon Creek Elementary attendance zone, this home is not only an investment in lifestyle but also in education. Experience the perfect combination of elegance, convenience, and community in this exceptional Shaddock Custom home.