4
2
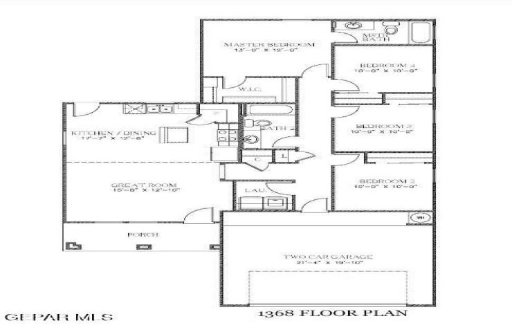
1368
Property Description: Introducing the Harrison floorplan - a thoughtfully designed 1,368 sq. ft. home that perfectly combines efficiency and style. This charming residence features 4 bedrooms and 2 baths, offering a cozy yet functional layout that meets all your needs.