3
2
1442
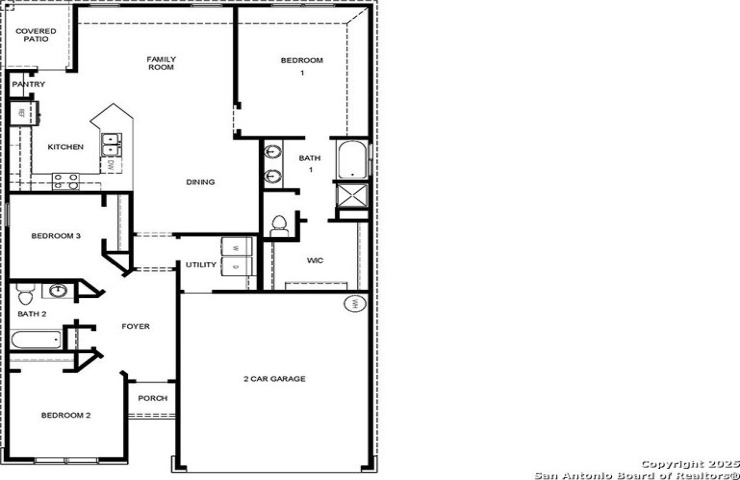
Property Description: Introducing The Torre, a one-story home featured in our Redbird Ranch community in San Antonio, TX. This floor plan offers 3 classic exteriors, 2-car garage, and a full yard landscaping and irrigation package, ensuring that your home looks its best every single day. Inside this 3 bedroom, 2 bathroom home, you'll find 1442 square feet of open-concept living. A front foyer leads you to a blended dining area, gourmet kitchen, and living room, perfect for entertaining and every day living. Your kitchen includes quartz countertops, stainless steel appliances, gas cooking range, stylish subway tile backsplash and abundant cabinet storage space. The private main bedroom is located off the living room towards the back of the home and includes a connected ensuite bathroom with dual vanity sink, a garden bathtub and a spacious tiled walk in shower. Enjoy additional privacy with a separate door for the toilet and a walk-in closet with built in shelving. Your secondary bedrooms are located at the front of the home right off the foyer and all feature quality carpet flooring and a closet, and can be used as bedrooms, offices, workout spaces or other bonus rooms. The possibilities are endless with The Torre floor plan. Additional features include tall 9-foot ceilings, 2-inch faux wood blinds throughout the home, luxury vinyl plank flooring at entry, living room, kitchen, and dining area, ceramic tile in the bathrooms and utility room, and pre-plumb for water softener loop. You'll enjoy added security in your new home with our Home is Connected feature. Using one central hub that talks to all the devices in your home, you can control the lights, thermostat and locks, all from your cellular device. Relax outside on the covered patio (per plan) and enjoy full yard landscaping and full yard irrigation. This perfect starter home includes our HOME IS CONNECTED base package. Using one central hub that talks to all the devices in your home, you can control the lights, thermostat, locks and more all from your cellular device.