4
2
2598
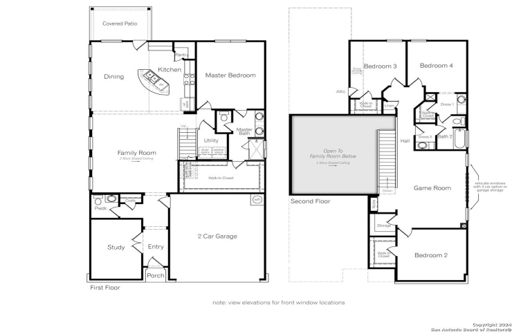
Property Description: Step into The Caspian floor plan at Riverstone at Westpointe in San Antonio, TX. This home showcases 2 classic front exteriors, full yard landscaping and irrigation and a 2-car garage. Inside this 4 bedroom, 2.5 bathroom home, you will find 2597 square feet of living space designed to meet your needs. The first floor offers an elongated entry way that open to a private study area before continuining to a spacious living room. The living room blends seamlessly into the dining area and kitchen in an open concept floor plan. Your kitchen is built for the ultimate home chef and offers spacious quartz countertops, an oversized kitchen island with a deep, single basin sink, a natural gas cooking range, and stainless steel appliances. Your main bedroom suite is located off the family room and offers quality carpet flooring and a ceiling fan. Large double windows provide plenty of natural light. The ensuite bathroom includes dual vanity sinks, a private room for the toilet, a tiled walk-in shower and a grand walk-in closet. The staircase leads to a spacious game room that is open to the living room below. You'll love this space with its large windows and storage closet. Three secondary bedrooms with walk-in closets and the second full bathroom are located off the game room. Additional features of this home include tall 9-foot ceilings, 2-inch faux wood blinds throughout the home, pre-plumb for water softener loop and more! You'll enjoy added security in your new D.R. Horton home with our Home is Connected features. Using one central hub that talks to all the devices in your home, you can control the lights, thermostat and locks, all from your cellular device.