4
3
2811
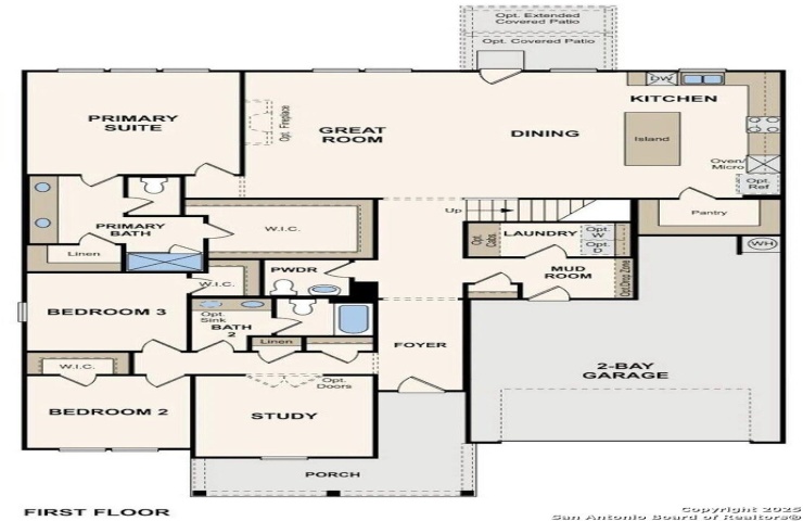
Property Description: For a home that's ideal for entertaining and everyday living, choose the Denali II! A sprawling open layout sits at the heart of this plan, flowing into a dining area and an impressive kitchen with a wraparound counter, center island, and walk-in pantry. The primary suite is adjacent, offering a walk-in closet, a linen closet, and a private bath with dual vanities and a walk-in shower. You'll also find two additional bedrooms and a private study on this level. The second floor boasts a versatile loft space that can be optioned as an additional bedroom. Additional home highlights and upgrades: 42" gray kitchen cabinets, quartz countertops and backsplash Luxury wood-look vinyl plank flooring in common areas Stainless-steel appliances with gas cooktop Additional recessed can lighting throughout home Walk-in shower and garden tub in Primary bath Black fixutures in all baths Upgraded gas fireplace Study at first floor Bed 4 and bath 3 at second floor Loft area Cabinets added in laundry room Quartz countertops and modern rectangular sinks in bathrooms Landscape package with sprinkler system Extended covered patio Gutters at front of home Exceptional included features, such as our Century Home Connect smart home package and more!