4
3
2970
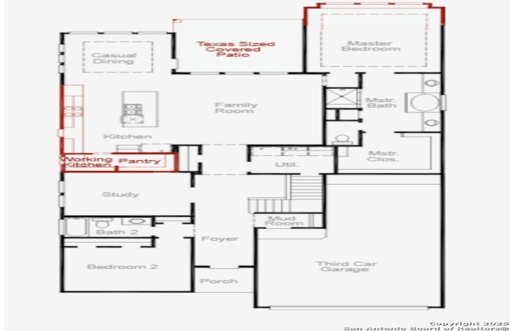
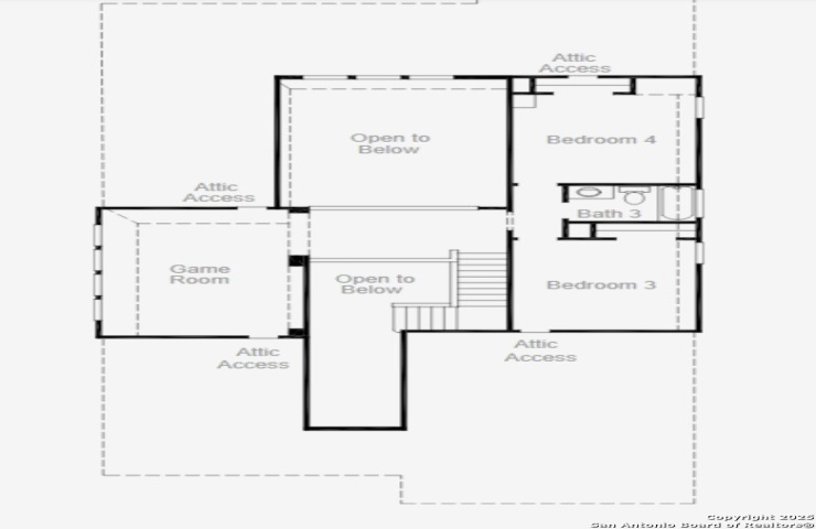
Property Description: With 4 spacious bedrooms and 3 well-appointed bathrooms, this home combines functionality and modern design. The main floor creates an inviting atmosphere with an open-concept layout that seamlessly integrates the kitchen, dining, and living areas, making it perfect for entertaining or daily living. Upstairs, the private bedrooms provide a tranquil retreat, with a luxurious primary suite featuring a walk-in closet and a spa-like bathroom. The three-car garage adds convenience and ample storage for vehicles or hobbies, while additional customizable spaces enhance the versatility of the home. Whether it's hosting family gatherings or enjoying quiet moments, the Dumont floorplan is thoughtfully designed to meet all your needs. Schedule your tour today!