3
2
1186
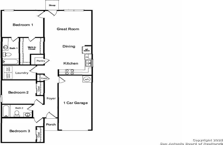
Property Description: The Prue is an inviting single-story featured in our Riverstone at Westpointe community in San Antonio, TX. Featuring 2 classic front exterior with siding, this 3 bedroom, 2 bathroom layout also offers 1186 square feet of living space and a 1-car garage. The Prue is designed to provide you with a comfortable place to call home. Host family and friends in the open-concept dining and living area, located adjacent to the kitchen. This home's kitchen includes quartz countertops, stainless steel appliances and desirable shaker style cabinets. The primary bedroom is situated toward the back of the home right off the living room. It includes a walk-in closet and a relaxing ensuite bathroom complete with a combined tub and shower and a single vanity sink with a quartz countertop. A large walk-in closet provides plenty of storage and space to get ready in the morning. The two secondary bedrooms and full bathroom are located off the entry of the home and all feature quality carpet flooring and a spacious closet. These rooms are versatile and designed to suit your purpose. Use these rooms as bedrooms, offices, work out rooms or other bonus spaces! Additional features of The Prue include sheet vinyl at the entry, downstairs living areas and wet areas, quartz countertops and full yard landscaping, irrigation and fencing. This perfect starter home includes our HOME IS CONNECTED base package. Using one central hub that talks to all the devices in your home, you can control the lights, thermostat, locks and more all from your cellular device.