4
3
2413
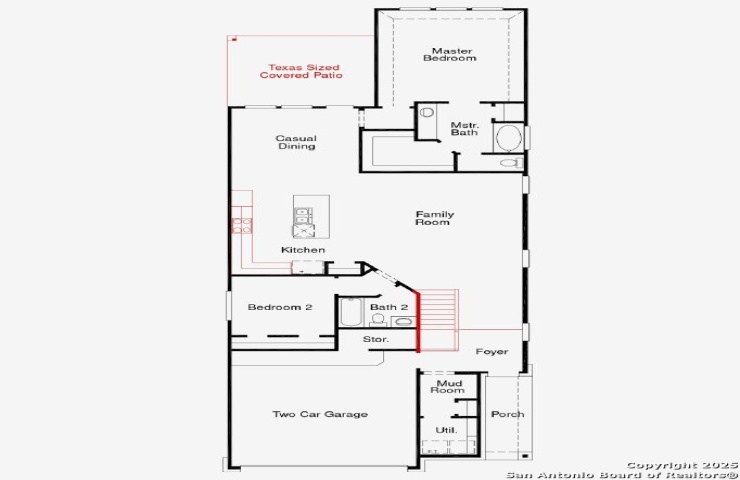
Property Description: The Bloomburg floor plan welcomes you with soaring 2 story ceilings, and a long foyer leads you to an open floor plan for gatherings. Gourmet kitchen with quartz counter tops, built-in appliances and Gas Cooking. Owners suite complemented with oversized mudset shower, 2 vanities and walk-in closet. Secondary bedroom with full bath also in main level. 2 additional bedrooms, full bath, and a Game Room in 2nd level of home. Private backyard fenced and Texas size Covered Patio. Modern designs and plenty of light for a comfort lifestyle awaits you in this new home.