3
2
2155
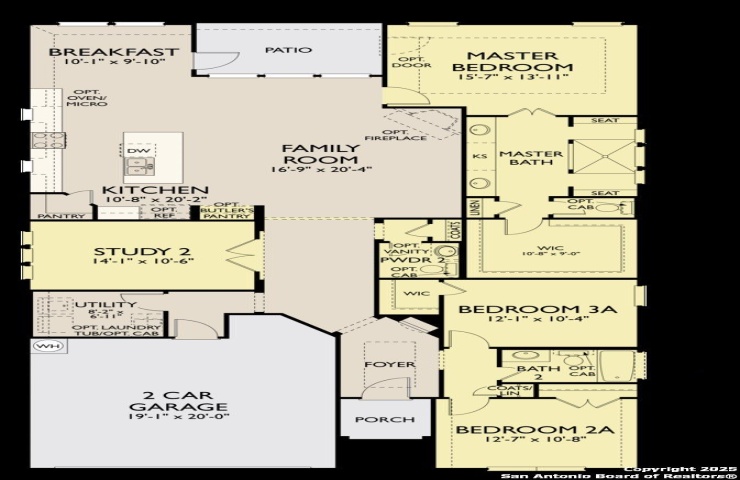
Property Description: Step into the Del Rio and be greeted by a bright, welcoming foyer that flows effortlessly into the heart of the home-a combined family room and gourmet kitchen. The kitchen is designed for both everyday living and entertaining, featuring an oversized center-island breakfast bar perfect for casual meals, homework sessions, or gathering with friends and family. Sunlight pours into the space through the bay window in the breakfast area, while the adjoining family room is framed by large windows that offer serene views of the backyard. The private primary suite is a true retreat, complete with a spa-inspired bath featuring a spacious two-seat shower and dual vanities for comfort and convenience. Thoughtful design continues with a powder room, coat closet, and a generously sized utility room, all adding functional space to keep everyday life organized. Two additional bedrooms share a well-appointed bathroom, providing space for family or guests, while a covered patio extends the living area outdoors, perfect for morning coffee, evening relaxation, or entertaining in the fresh air. Every detail of the Del Rio is crafted to blend style, comfort, and practicality, creating a home where daily life feels effortless and welcoming. This home features design selections thoughtfully curated by our professional studio team. Each finish, from flooring and cabinetry to countertops and special touches, is chosen with care to create a cohesive and beautifully balanced look. Guided by timeless design principles and inspired by modern lifestyles, the result is a home that is both stylish and welcoming from the moment you step inside. This home is located in Megan's Landing, a vibrant family-friendly community nestled in the scenic Texas Hill Country. Enjoy quick access to shopping, dining, and entertainment, plus nearby outdoor escapes like the Medina River and Government Canyon State Natural Area. With top-rated Medina Valley ISD schools, Megan's Landing offers the perfect blend of natural beauty, convenience, and community for your family's next chapter.