2
1
973
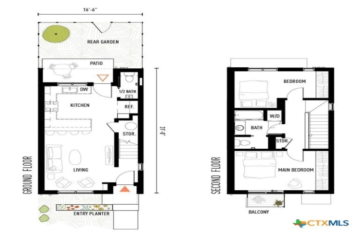
Property Description: Reach out to walk through a furnished unit with us today! Finished interior photos coming soon. Lively Lane is a pocket neighborhood of contemporary townhomes located in the heart of San Marcos. Its convenient location makes it possible to own a new home in town and not miles away from the city center. High quality standard specifications and professionally managed condominium association support lock-and-leave convenience for a modern lifestyle. New homes completed in 2025 at Lively Lane are Energy Star(R), EPA Indoor AirPlus, and Department of Energy Zero Energy Home Ready (ZERH) rated. The neighborhood is near a multitude of walkable services and even more essential destinations by bike. That means that sustainability comes standard, and - for those that want to do more - add-ons are available including solar packages, solar carport, and electric vehicle chargers. Other standard features include interior finishes like hardwood flooring, quartz kitchen and bath countertops, vaulted top floor ceilings, Daikin Smart Thermostats, GE and GE Profile appliances with induction range included, heat-pump air conditioning and water heaters, Pella casement windows, advanced framing techniques, native landscaping, a permeable paver system, and so much more. Lively Lane has also partnered with a neighborhood exclusive carshare service, available to residents and guests. The Clever Townhome is a sensible home designed to provide for daily necessities in a cozy two-floor layout. Living and kitchen activities situate downstairs away from the quiet of the bedrooms above. Vaulted ceilings and a main bedroom balcony open up the second floor; and a full bath maximizes functionality with a separate toilet closet and integrated washer/dryer. A welcoming entry planter and rear patio create opportunities to test your green thumb and relax outdoors. 102 and 104 Lively Lane models include a larger private, fenced rear garden. Dreaming of this townhome? Aren't you Clever.