3
2
1416
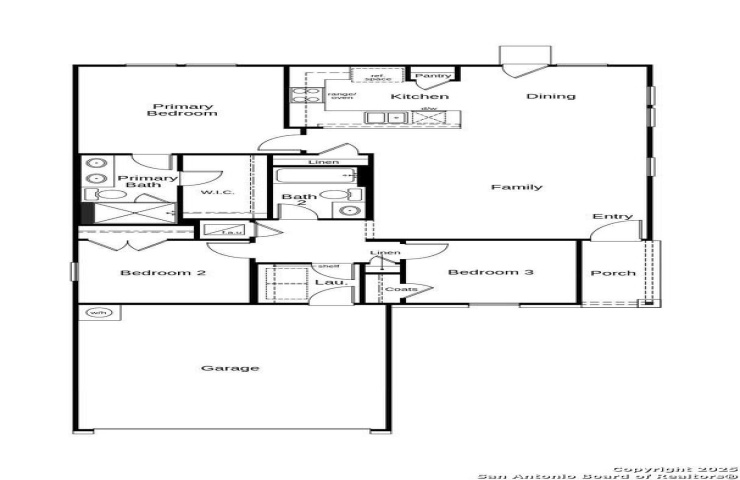
Property Description: This thoughtfully crafted home features 9-ft. first-floor ceilings that create a spacious and open feel. The kitchen offers Whirlpool stainless steel appliances, Woodmont Belmont 42-in. upper cabinets, granite countertops in Barcelona, and an extended breakfast bar perfect for casual dining. The primary bath invites relaxation with upgraded cabinets and a 42-in. garden tub/shower surrounded by elegant Daltile tile. Stylish touches include a Carrara-style entry door, Kwikset Polo interior door hardware, and Coastline ceramic tile flooring throughout the great room, kitchen, and baths. Additional highlights include a wireless security system, fully sodded yard, and automatic sprinkler system for easy outdoor upkeep.