5
3
2623
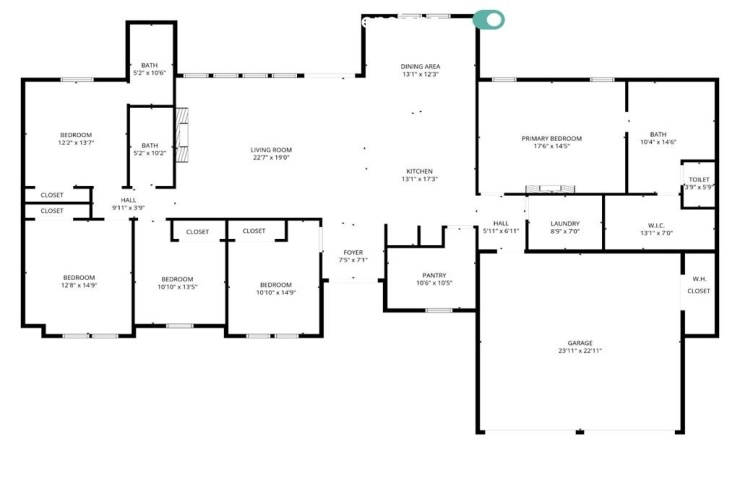
Property Description: Discover luxury living in this stunning new home, designed and built by Milani Custom Homes-one of West Odessa's top builders. Perfectly situated on a half-acre lot in a gated community, this 5-bedroom, 3-bath residence offers 2,623 sq. ft. of refined comfort. Expansive windows fill the home with natural light, creating a warm and inviting atmosphere. The open-concept kitchen features custom cabinetry and a spacious walk-in pantry, with several builder upgrades added to the home.