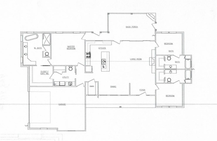
Property Description: New Lake Fork Subdivision Serenity Point!! 3233 Square foot under roof! Proposed new construction waterfront custom built home of over 2150 sq ft of heated & cooled square waterfront living on a private cul de sac lot with over an acre of fabulousness!! This home features front & back porches, attached two car garage, walk in pantry, Open living dining kitchen space, spacious primary suite with split bedroom plan, two guest bedrooms each with ensuite bathrooms & walk in closets all on Lake Fork WaterFront with Fantastic access & views!! More lots & floor plans available. All floor plans are customizable! Paved road, gated entrance coming soon! Sellers own L&L Builders and build Custom Homes.