3
2
1885
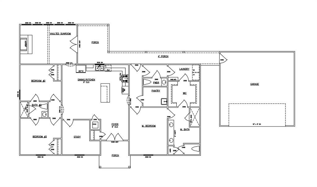
Property Description: New Lake Fork Subdivision Serenity Point!! Proposed new construction waterfront custom built home of 1885 sq ft of water front living on a private cul de sac lot with well over an acre of fabulousness!! This home features wrap around porch, Open living dining kitchen space, separate den & powder room for guests as well as a Very spacious primary suit! More lots & floor plans available. All floor plans are customizable! Paved road, gated entrance coming soon! Sellers own L&L Builders and build Custom Homes. Home Photos are example photos of the floor plan finished out previously at another location.