3
2
1305
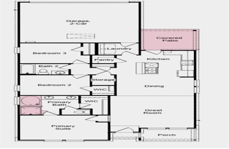
Property Description: What's Special: Single Level Living - East Facing Lot - Close to Trails. New Construction – October Completion! Built by Taylor Morrison, America's Most Trusted Homebuilder. Welcome to the Eller at 1108 Broomsedge Mews in Cross Creek Meadows 40s. The Eller is a stylish single-story home designed for comfort and ease. The gourmet kitchen features a large eat-in island and opens to the casual dining area, creating a natural flow for everyday living. The gathering room offers a spacious, welcoming spot to unwind or host guests. Privately tucked away, the primary suite includes a generous walk-in closet and a spa-inspired bath with a soaking tub and separate shower—your perfect daily retreat. Located in charming Celina, Cross Creek Meadows 40s offers planned amenities like a pool, trails, and dog park—all within a top-rated school district. Additional Highlights Include: Tub and shower in primary bath and covered outdoor living. MLS#20992507