5
4
3379
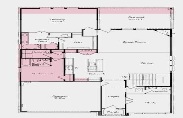
Property Description: 72-Hour Sales Event 9.26 – 9.28! Contact us to unlock access now. New Construction - October Completion! Built by Taylor Morrison, America's Most Trusted Homebuilder. Welcome to the Bordeaux at 4208 Gladewater Avenue in Highland Lakes! This spacious home features an open concept kitchen, dining, and gathering area with access to a covered patio. A main-level guest suite, private study, and secluded primary suite with a spa-like bath offer flexible living. Upstairs, enjoy three bedrooms, two baths, a game room, and media room. Located in Highland Lakes, where amenities are complete and ready to enjoy, including a pool, fitness center, and trails. Zoned to top-rated Prosper ISD and with no MUD or PID taxes, it's a great place to call home. Space, style, and smart living, all in Highland Lakes. Additional Highlights Include: Downstairs bedroom and full bathroom in place of tandem garage, shower at downstairs secondary bath, extended primary suite, slide in tub at primary bath, study in place of flex, media room, and extended covered patio. Photos are for representative purposes only. MLS#21065743