4
3
2669
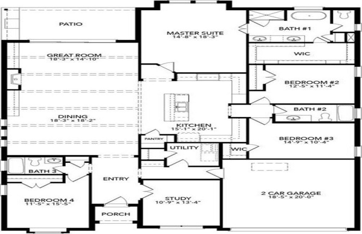
Property Description: MLS# 21128423 - Built by Sandlin Homes - Ready Now! ~ This thoughtfully designed Augusta plan showcases the perfect blend of luxurious structural and design upgrades, creating a home that’s as functional as it is stunning. Step into the inviting great room, where custom navy-blue built-ins pair seamlessly with dramatic, black-veined tile extending to the ceiling – an intentional focal point that adds depth and sophistication. Entertain effortlessly with features like an outdoor grill, expansive sliding glass door, and a generously sized kitchen ideal for hosting gatherings or celebrations. Flexible living spaces include a converted living room to study, and a secondary bedroom enhanced with a full bath – perfect for guests or multigenerational living. In the primary suite, a charming box bay window brings in abundant natural light, adding to the home’s serene and luxurious ambiance. The gourmet kitchen is a showstopper, featuring warm-toned stained upper cabinets, crisp white lowers and island cabinetry, and an ornate chevron-style mosaic backsplash. Champagne bronze fixtures and hardware add a touch of elegance, while a balanced palette of warm and cool tones ties the entire home together with intentional beauty.