3
2
1785
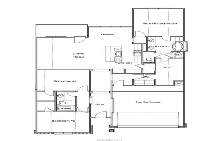
Property Description: Estimated for completion in December 2025, 3711 Panola Park is ready for you to call home! Situated on a comfortable lot - with NO rear neighbors - the ever popular 1724 Plan welcomes you with soaring 10' ceilings, 8' stained front door, stained entry beams and oversized common area windows. This traditional split floor plan features two generous sized guest rooms with walk in closets on one side of the home. The full guest bathroom features granite counters, stylish subway tile, soft-close white cabinetry and brushed nickel plumbing fixtures. The common gathering space is situated for both every day living and functional entertaining with a gas start fire place, counter-height bar seating, GE stainless steel appliances including a 30" cooktop, smart oven, and microwave with a vent to the exterior. Black leathered granite counters highlight the expansive counter space, with contrasting white soft-close cabinetry, and a warm backsplash to round out the kitchen. The primary bedroom overlooks the backyard, includes a spacious en-suite with natural light, soaking garden tub, walk in shower and generous closet space. With functionality in mind, the primary closet connects to the laundry room and mudroom. Complete with blinds on all windows, fans in all bedrooms, smart home features throughout for added comfort and privacy. Located conveniently to Texas A&M, shopping and dining, and surrounded by the trees and amenities of Mission Ranch. Welcome home with Ranger Home Builders!