5
3
2660
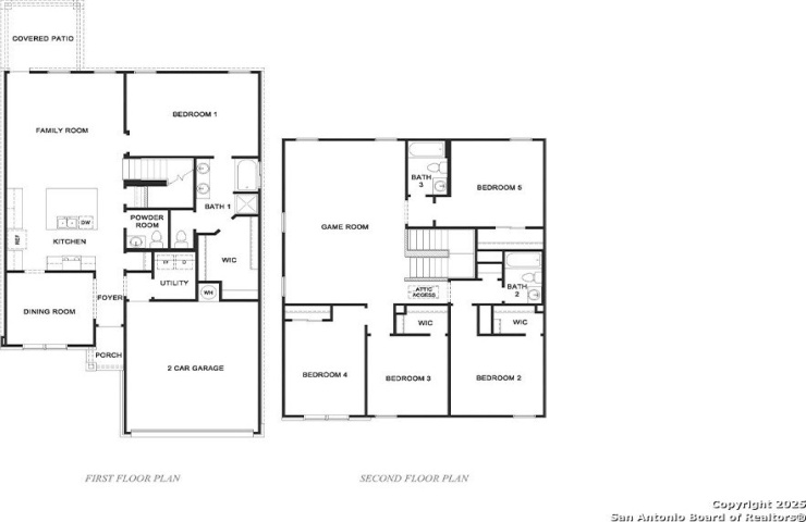
Property Description: Step into The Callum, a two-story home featured in our Avenida community in Converse, TX. This floor plan is one of our larger floor plans. This layout features 5 bedrooms, 3.5 bathrooms and a 2-car garage. The Callum also offers 3 classic front exteriors and 2,660 square feet of comfortable living. The Callum features classic designs and modern features that blend seamlessly to create the perfect space for you and your loved ones. The covered front patio (per plan) opens into a beautiful foyer and formal dining room with abundant natural light from multiple windows. The foyer leads into an open-concept kitchen with stainless steel appliances, quartz countertops, white subway tile backsplash, and a kitchen island that faces the spacious living room, perfect for entertaining! The private main bedroom suite is also located off the living room. Your bedroom area is spacious and you'll relax in style with large windows and quality carpet flooring. The ensuite bathroom features ceramic tile flooring, desirable double vanity sinks, separate garden tub and walk-in shower, a private water closet, and large walk-in closet with plenty of shelving. The second story of The Callum has so much to offer! A large loft area is waiting for you at the top of the stairs. Whether you use this space as a game room, office, or a media room, there is sure to be comfort. Your remaining 4 bedrooms are all located off the loft and include large windows, quality carpet flooring and spacious closets. You will also find 2 full bathrooms upstairs, complete with bath tub and shower combos and single vanity sinks. This floor plan even has a linen closet! Additional features include luxury vinyl plank flooring in the entry, family room, kitchen, and dining area, ceramic tile in the bathrooms and utility room, and pre-plumb for water softener loop. You'll enjoy added security in your new home with our Home is Connected features. Using one central hub that talks to all the devices in your home, you can control the lights, thermostat and locks, all from your cellular device.