2
2
1130
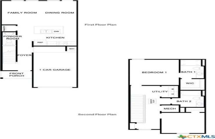
Property Description: MOVE IN READY! Introducing the Robin floorplan at Bollinger in Maxwell, Texas is a two-story home is perfect for first time homeowners or smaller families. Featuring 2 bedrooms and 2.5 bathrooms, this home also includes a 1-car garage all within 1,130 square feet. Our homes in Bollinger feature our modern farmhouse exterior. Stepping inside the home from the covered front porch, you'll enter a long foyer that leads into the heart of the home, the open concept living space. This cozy area of the kitchen, dining and family room makes cooking and entertaining enjoyable for everyone. The kitchen features laminate countertops with 50/50 stainless steel drop-in bowl, 4" laminate backsplash, 36" upper cabinets and stainless-steel appliances, including a gas range. The pantry and powder room are off the kitchen to complete this downstairs space. Ascending the stairs, you'll find the primary bedroom with an attached bathroom. This space will become your retreat at the end of the day. The bathroom features a walk-in shower, laminate countertop, and a walk-in closet. Outside the primary bedroom is the utility room, making your laundry chores easy to complete. Moving down the hall towards the front of the house, you'll discover the secondary bathroom and bedroom. Bath 2 includes a shower/tub combination. The Robin includes vinyl flooring throughout the common areas of the home, and carpet in the bedrooms. All our new homes feature Bermuda sod, an irrigation system in the front and back yard, and a 6' privacy fence around the back yard. This home features our America's Smart Home base package, which includes the Video Front Doorbell, Front Door Deadbolt Lock, Home Hub, Thermostat, and Deako(R) Smart Switches.