4
2
1877
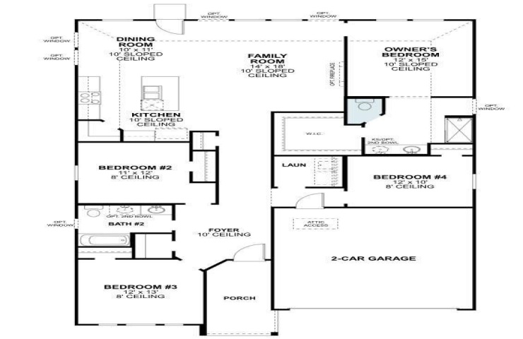
Property Description: The Shipton is a beautifully designed single-story home that combines thoughtful functionality with elegant simplicity. With 4 bedrooms, 2 full bathrooms, and open-concept living space, this home offers the flexibility growing families need and the style today’s homeowners love. From the charming covered porch to the wide, welcoming foyer, you’ll feel the warmth of the Shipton’s layout right away. Two spacious secondary bedrooms and a full hallway bath are tucked up front, offering the perfect setup for kids, guests, or even a home office. A third secondary bedroom sits on the opposite side of the home, offering even more privacy and versatility. At the heart of the home, the open kitchen, dining room, and family room come together under 10' sloped ceilings to create a bright, airy space made for entertaining. The kitchen features a center island and abundant cabinetry, while the nearby dining area is enhanced by optional boxed windows to maximize natural light. Tucked away at the rear of the home, the owner’s suite offers a peaceful escape with a large bedroom, walk-in closet, and private en-suite bath. Personalize your retreat with available upgrades like a deluxe owner’s bath, bay window, or private water closet for added comfort and luxury. Additional highlights include a convenient laundry room, a dedicated mud room off the 2-car garage, and options for outdoor living with a patio, covered patio, or extended covered patio. Whether you're hosting a holiday meal or relaxing with family on the weekend, the Shipton makes every moment feel like home.