4
3
2680
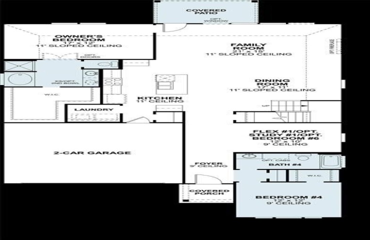
Property Description: Built by M-I Homes. Picture yourself in this charming Livingston floorplan. Bring your new home dreams to life inside of this spacious two-story home design. 4 bedrooms, 3 bathrooms, and spacious amount of square feet, from the functional flex rooms, to the upstairs game room, everyone will have a space to call his or her own in this beautiful layout. Our team of expert designers have pre-selected all of today's latest trends and incorporated them into designer selected packages with coordinating colors, finishes, and fixtures. A well-lit flex room, sizable storage closet, and conveniently located powder bathroom are tucked right off the entrance. Create the space you've always wanted thanks to a large flex room tucked further down the foyer. From reading lounge, to play room, or extra hobby space, the opportunities are endless. The foyer empties into the open-concept living space creating the ideal open backdrop for entertaining and peaceful living. The well-equipped kitchen boasts a sizable island with granite countertops and plenty of storage space. Sloped ceilings elevate the adjacent dining room and family room. If you love enjoying a breath of fresh air or savoring a vibrant sunset, the optional covered patio will create your perfect sanctuary to enjoy the outdoors. The extended covered patio option is sure to bring those dreams to life. Unwind in your expansive owner's suite tucked privately off of the family room. An optional bay window maximizes square footage while artfully creating a cozy reading nook. A grand double door entrance opens up to your owner's bathroom retreat complete with an oversized walk-in shower and enormous walk-in closet. Head upstairs for more functional living space. The second floor you will find a spacious game room making the perfect play space for the kids to let their creativity and imagination run wild. A full bathroom and two sizable secondary bedrooms complete the second floor. Schedule a tour today.