Property Description: Built by M-I Homes. Discover this inviting new home at 4004 Birch Lane in Argyle, offering a comfortable blend of modern style and everyday functionality in a sought-after neighborhood.
Key Features:
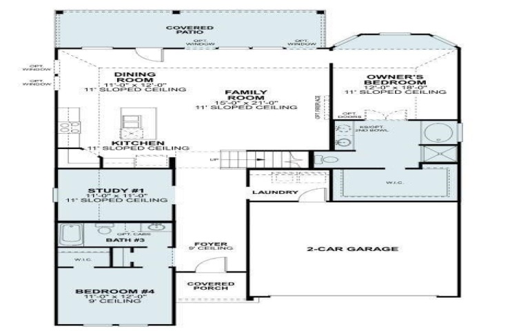
• 2 story layout with the owner's bedroom and included sitting area on the main level
• 4 bedrooms and home office
• 3 bathrooms
• Open concept main living areas
• Contemporary interior finishes throughout
Neighborhood & Location Benefits:
• Close to local parks and outdoor recreation
• Easy access to area conveniences and community amenities
The layout emphasizes connected living spaces that create a bright and welcoming environment for both daily routines and entertaining. Thoughtful design elements contribute to a sense of comfort and flow throughout the main level.
Upstairs bedrooms offer added flexibility for family or guests, while the overall plan provides a practical balance of private and shared spaces.
The property's location in Argyle puts you close to parks and recreational opportunities, with the added benefit of being in a desirable neighborhood known for its community atmosphere and quality of life. Experience the exceptional craftsmanship and personalization options available in this beautiful new construction home at 4004 Birch Lane in Argyle, TX. Schedule your tour today!