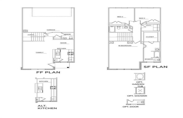
Property Description: MLS# - Built by HistoryMaker Homes - Mar 2026 completion! ~ Discover this stunning 3-bedroom, 2.5-bath traditional townhouse located in the desirable Heartland Townhomes subdivision of Crandall ISD. This well-designed home, scheduled for completion by March 2, 2026, boasts a spacious 1,754 square feet of living space, perfect for modern lifestyles. Each bedroom features walk-in closets, with the primary suite offering a double vanity for added convenience. Enjoy the open floorplan that seamlessly connects the living and dining areas, enhanced by high-speed internet availability and cable TV access. The kitchen is equipped with a pantry for your storage needs, while the covered patio invites outdoor relaxation. Additional highlights include a two-car garage, central heating and cooling, and a durable composition roof. With luxury vinyl plank and carpet flooring, this home combines comfort and style. Conveniently located near Opal Smith Elementary, Crandall Middle, and High Schools. This townhouse is designed for contemporary living.