4
2
2850
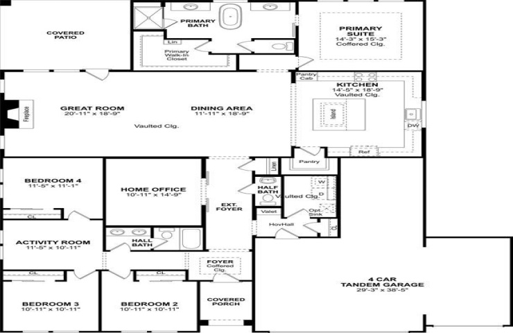
Property Description: Gorgeous one-story home located at Heath Golf and Yacht Club in Heath! Private home office located off extended foyer, as well as three secondary bedrooms and a versatile activity room. Great room features a center fireplace and windows that flood the room with natural sunlight. Kitchen has quartz countertops, light stain shaker cabinets, and stainless steel appliances.