4
3
2444
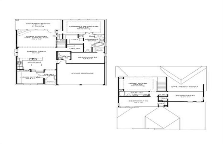
Property Description: Welcoming entry framed by home office with French door entry. Island kitchen features a built-in seating space, a 5-burner gas cooktop and a large walk-in pantry. Family room with a wood mantel fireplace and three large windows extends to the dining area. Private primary suite with three large windows. Primary bathroom offers a French door entry, dual vanities, garden tub, separate glass enclosed shower and a large walk-in closet. Secondary bedroom offers a walk-in closet and a full bathroom. Second floor hosts a large game room and secondary bedrooms. Utility room. Covered backyard patio. Two-car garage.