4
3
3236
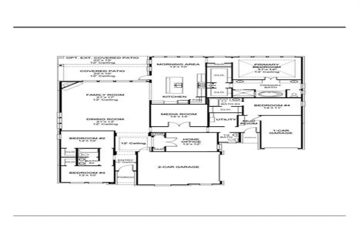
Property Description: Porch leads to welcoming entry with 12-foot ceilings. Home office with French doors just off the entry. Hardwood floors throughout living areas. Open family room with a wood mantel fireplace and wall of windows extends to dining room and kitchen. Island kitchen with a double wall oven, 5-burner gas cooktop, and walk-in pantry flows to the morning area with a wall of windows. Secluded primary suite with 13-foot ceilings and a large wall of windows. French doors lead to the primary bathroom with dual vanities, freestanding tub, separate glass enclosed shower, linen closet and two walk-in closets. Media room with French doors. Private guest suite with a full bathroom and a walk-in closet. Secondary bedrooms. a half bathroom and a utility room complete this spacious design. Extended covered backyard patio. Mud room. Three-car split garage.