5
5
4330
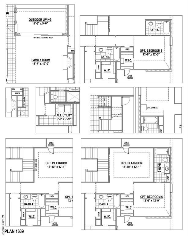
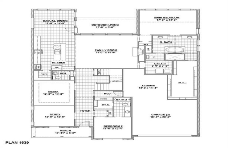
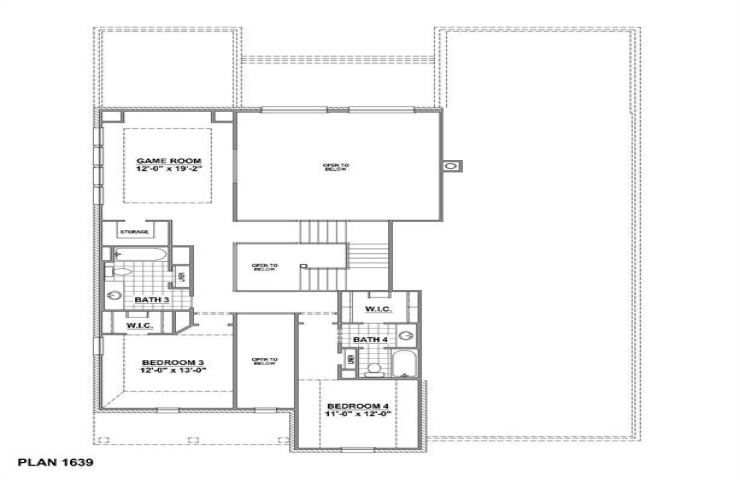
Property Description: This stunning two story home offers the perfect blend of comfort and luxury with 5 spacious bedrooms and 5.5 baths. Two of the bedrooms are conveniently located on the first floor, including the impressive primary suite which features a cathedral ceiling, large shower, separate soaking tub and a massive walk-in closet. The first floor also includes a media room and a study, providing both relaxation and productivity spaces as well as sliders that open to the outdoor living space. The open-concept kitchen is a chef's dream, with plenty of counterspace, walk-in pantry, waterfall island and seamless access to the living area with fireplace, making it perfect for entertaining. Upstairs, the game room and play room offers a fun and versatile space for all ages catering to growing families or those who desire extra space. Completing the package is a 3-car tandem garage, offering ample storage and room for vehicles. The home combines modern design with functional spaces for everyday living.