4
3
3021
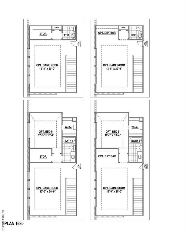
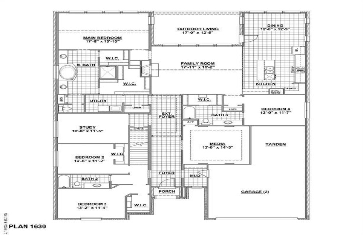
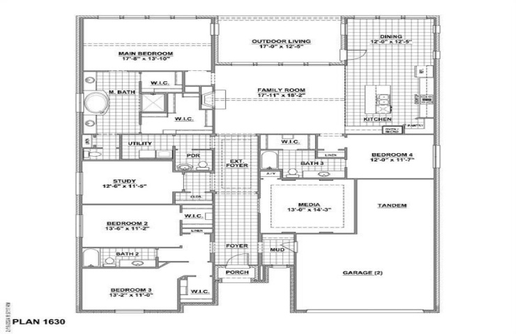
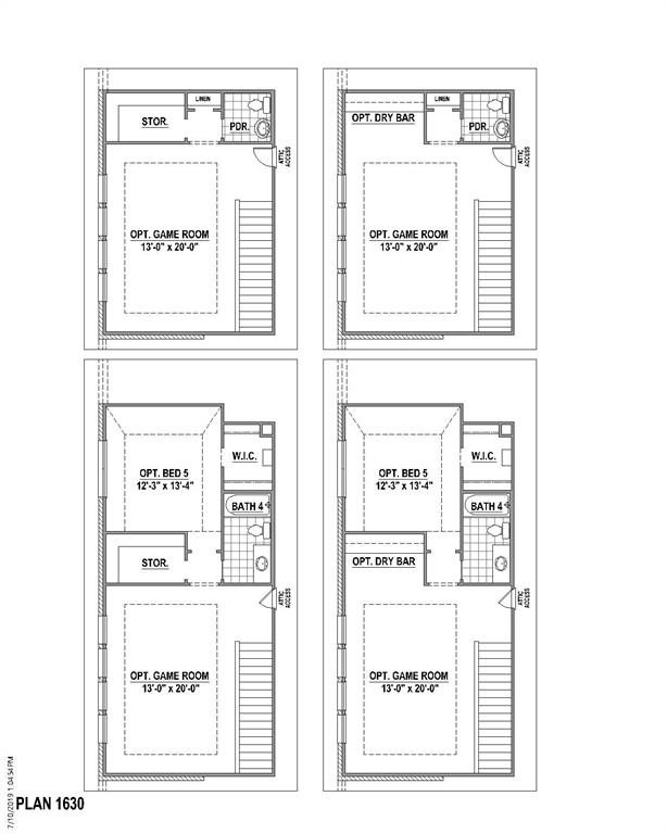
Property Description: This stunning four-bedroom, one-story home has it all, a media room, home office, open kitchen and dining with a private main suite in the back of the house. As you enter the foyer, you will find two and three bedrooms along with their shared full bathroom. Across the hall is the media room that is next to the mud room off the garage. Towards the end of the foyer is the spacious home office, powder bathroom and laundry room. The family room is complete with a fireplace and a wall of windows that faces the outdoor living space. This flows into the kitchen and dining area. Bedroom four is located off the living room with its own full bathroom and walk-in closet. The secluded main bedroom includes a large bathroom with dual vanities, walk-in shower, bathtub and two walk-in closets. The outdoor living space is great for the grilling chef to entertain. The 3-car tandem garage is a plus!