4
3
2278
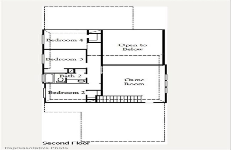
Property Description: MLS# 21136554 - Built by Coventry Homes - Const. Completed Dec 20 2025 ~ Experience elevated living in this stunning 2-story home, featuring 4-bedrooms and 3.5-bathrooms wrapped in a sophisticated blend of brick and stucco. The open-concept layout flows effortlessly between the living, dining, and gourmet kitchen—designed with modern finishes and perfect for entertaining or everyday life. Upstairs, generously sized bedrooms offer comfort and ample storage, while stylish architectural details and premium upgrades throughout add a touch of elegance to every corner. This home is the perfect fusion of beauty and function—schedule your private tour today and see it for yourself!