3
2
2037
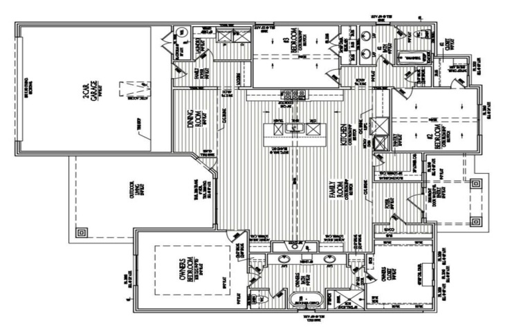
Property Description: Welcome to this beautifully designed 3-bedroom, 2-bathroom home that blends comfort, style, and functionality built by Addison Homes. The open-concept living, dining, and kitchen area creates a bright and inviting space-perfect for everyday living and effortless entertaining. The kitchen is thoughtfully laid out with ample counter space and a spacious walk-in pantry, offering excellent storage and organization. The seamless flow into the dining and living areas makes this home ideal for gatherings of any size. The primary bedroom features a private ensuite bathroom, while two additional bedrooms provide flexibility for family, guests, or a home office. A second full bathroom adds convenience and comfort. With its modern layout and practical features, this home offers the perfect balance of openness and privacy-an ideal place to settle in and make your own. Addison Homes!