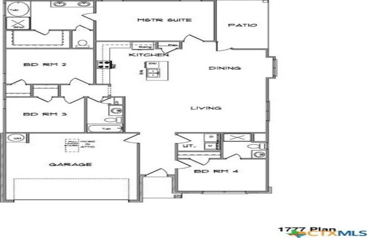
Property Description: Plenty of room to work and play in this 4 bedroom 3 bath home in Warriors Legacy in Nolanvillle, TX. This is another beautifully upgraded home (standard features!) from Jerry Wright Homes with mid March 2026 completion on the books.