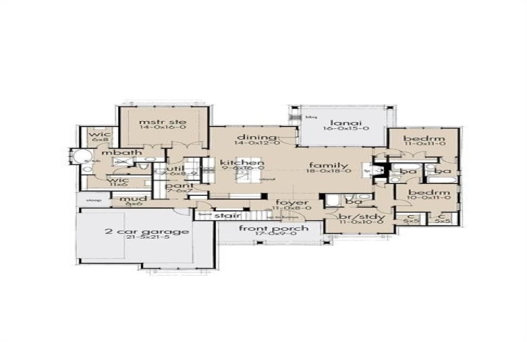
Property Description: STONE CREEK RANCH Subdivision! Enjoy peaceful country living on nearly 2 acres with a private well—no water bill and no HOA! This beautiful modern farmhouse nestled on a stunning treed lot features 4 bedrooms and 4 bathrooms with an impressive open floor plan featuring vaulted ceilings, a cozy fireplace, spacious bedrooms, plus fantastic covered porches! The open kitchen features a large island and walk-in pantry. The versatile dining room steps out to a breezy lanai for easy outdoor entertaining. When you need some quiet relaxation, escape to the luxurious master suite. A garden tub and a separate shower are highlights in the private bath, along with two vanities and two large walk-in closets. The flexible 4th bedroom is ideal as a guest suite or could serve as a home office, with convenient bath access. Schedule your showing today. Don't miss the opportunity to make this beautiful home yours! Estimated completion February-March 2026