4
3
2659
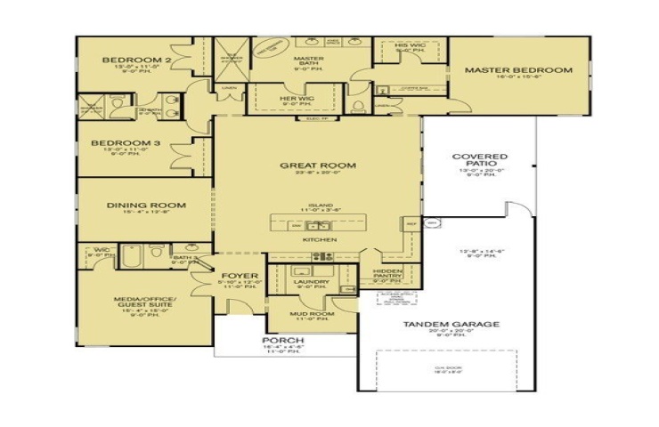
Property Description: Relocating to Corpus Christi or ready to move up into new construction-without waiting months to build? Welcome to 1494 Irigoyen situated on approximately 0.23 acres in Kings Landing. A thoughtfully designed four-bedroom single-story home in London ISD, offering open-concept living, flexible spaces, and a rare opportunity for buyers to personalize select finishes, all on a quiet cul-de-sac lot. Built by Jade Homes, the residence offers the advantage of customization without starting from scratch or navigating the full timeline of a traditional new build, making it especially appealing to relocation and move-up buyers. The great room makes an immediate impression with soaring ceilings and an expansive wall space anchored by a floor-to-ceiling fireplace with a dramatic stone finish. The kitchen is designed for everyday living and entertaining, featuring a gas cooktop, double ovens, a large center island, abundant cabinetry, and a hidden walk-in pantry that keeps storage out of sight while maintaining a clean, modern aesthetic look. A dedicated dining room sits just off the kitchen and great room, providing a defined space for gatherings while remaining connected to the main living areas. The primary suite is privately positioned and thoughtfully designed with two walk-in closets, a convenient coffee bar area, and a spacious bathroom planned to include a walk-in shower and soaking tub. Two secondary bedrooms share a Jack-and-Jill bathroom with a double vanity and separate enclosed shower area, while a second en-suite or flex room offers room for guests, a home office, or multigenerational living. Additional features include a covered patio off the great room, a tandem three-car garage, a dedicated mudroom, and a separate laundry room with utility sink. This home offers a limited window for buyers to personalize select finishes-an opportunity rarely available without the wait of a full new custom build.