4
2
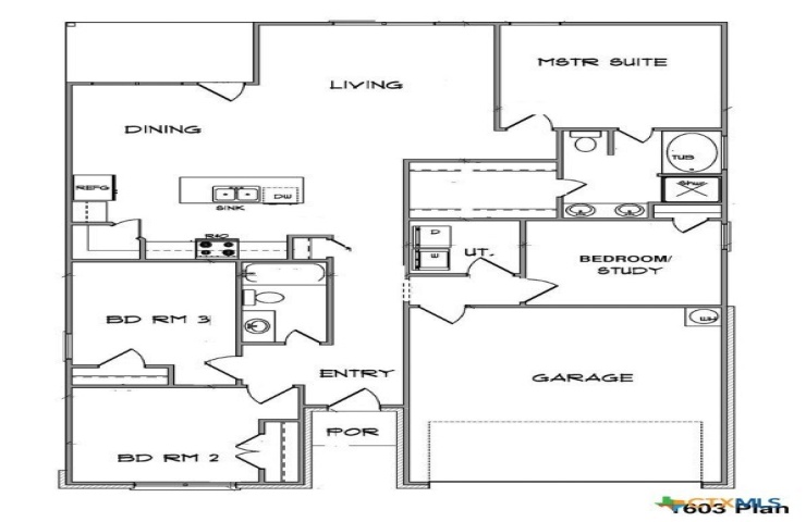
1603
Property Description: Public Remarks: Gracious entry gallery, split bedroom arrangement with the main bedroom at rear of home and three minor bedrooms near the front of the home. Kitchen features tall custom cabinets, corner pantry, quartz counters, and island overlooking the living room, dining area and backyard. Living area has a beamed ceiling and big windows. You'll find beautiful ceramic tile in the entry hall, kitchen, dining area and living room as well as in the laundry and baths. Builder is including 2 inch faux wood blinds, a garage opener, full yard grass sod, full yard lawn sprinkler system, privacy fencing, trees and foundation plantings.