5
4
3667
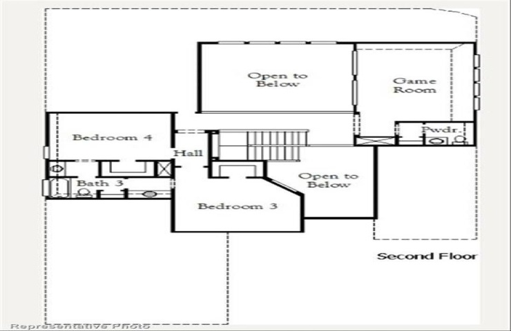
Property Description: MLS# 21141405 - Built by Coventry Homes - May 29 2026 completion! ~ Step into luxury with this stunning Coventry Homes design in the master-planned community of Sandbrock Ranch in Aubrey, TX. This impressive 5-bedroom, 4.5-bath home features an open-concept layout with a spacious living room highlighted by a show-stopping fireplace, perfect for everyday living and entertaining. The gourmet kitchen shines with a large island and designer finishes, while the private primary suite offers a true retreat with a spa-inspired bath and oversized walk-in closet. Enjoy outdoor living on the Texas-sized covered patio, plus the added convenience of a 3-car garage. Residents have access to resort-style amenities including a pool, fitness center, scenic trails, and tranquil ponds. Schedule your tour today!