3
3
2785
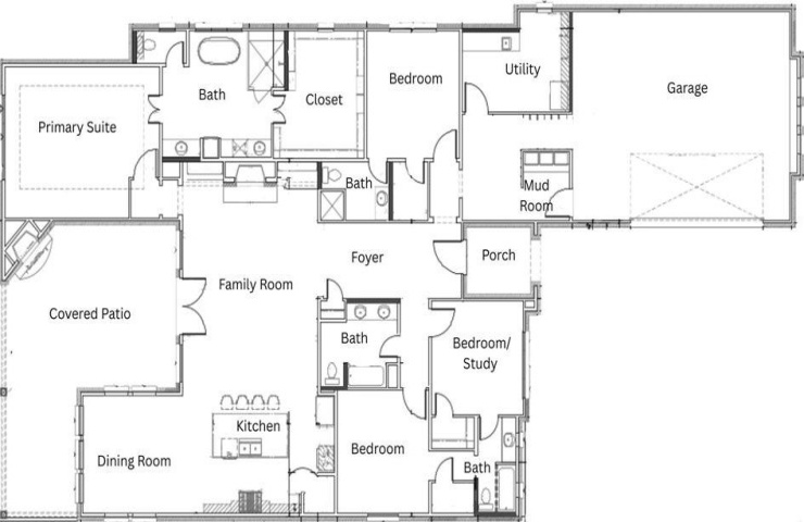
Property Description: Ten acres to spread out, build big, and live your way. This modern custom home offers the peace, privacy, and freedom of true country living—within easy reach of Fort Worth first, then Weatherford, and located in Poolville ISD. Thoughtfully designed for both comfort and flexibility, the home features 3 bedrooms, a private study, and a 3-car garage all set on 10 beautiful acres of rolling countryside with mature trees and open views. Enjoy quiet surroundings, room to expand, and the kind of space that’s becoming increasingly hard to find. Inside, an open-concept layout highlights a modern kitchen with a large quartz island, custom cabinetry, and sleek finishes, flowing seamlessly into spacious living and dining areas. High ceilings and abundant natural light create an inviting atmosphere ideal for both relaxed living and entertaining. The primary suite offers a private retreat with a spa-style bath, walk-in shower, soaking tub, and generous closet space. Three additional bedrooms plus a dedicated study provide flexibility for guests, multi-generational living, hobbies, or a home office. Step outside to a large covered patio overlooking your 10 acres, with room to add a pool, shop, barn, or additional structures, or simply enjoy the peace and privacy of wide-open land. Additional tracts are available, allowing buyers the opportunity to purchase more land and create a larger private estate. This home captures the best of modern country living—contemporary comfort, expansive land, and long-term flexibility—all within Poolville ISD. Coming May 2026