3
2
1908
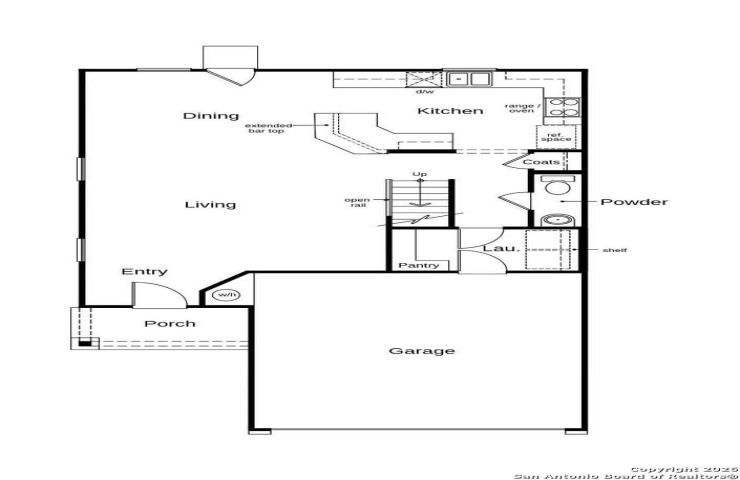
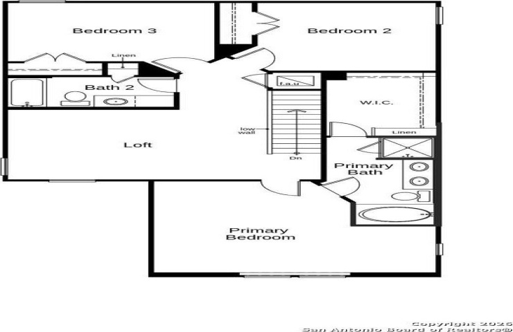
Property Description: Discover a welcoming home designed for modern living with an open floor plan that flows effortlessly from room to room. The kitchen is both stylish and functional, featuring Woodmont Cody 42-in. upper cabinets, Whirlpool stainless steel appliances, Linen Cream Silestone countertops, and an extended breakfast bar ideal for gatherings. The primary bath offers a raised vanity, a relaxing 42-in. garden tub, and a separate shower with Daltile tile surround. Finishing touches include a Monterey-style entry door, Kwikset Polo interior hardware, and vinyl plank flooring throughout the bathrooms, kitchen, and living room. A full gutter system completes the exterior for added peace of mind.