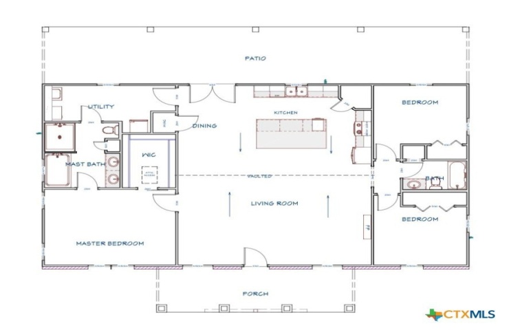
Property Description: **To Be Built - Charming 3 Bed, 2 Bath Country Home on 5 Acres** Nestled in the peaceful countryside, this to-be-built 3-bedroom, 2-bathroom home offers the perfect blend of comfort, space, and functionality on a beautiful 5-acre lot. Designed with an open-concept layout, the heart of the home features a spacious kitchen that flows seamlessly into the living area - ideal for family living and entertaining. The large master suite is thoughtfully planned with a generous walk-in closet, a private bathroom, and convenient access to the utility room. On the opposite side of the home, you'll find two additional bedrooms with a full bathroom situated between them for added privacy. Enjoy quiet mornings or peaceful evenings from the inviting front porch, and take advantage of the attached carport for covered parking and extra storage. Whether you're looking for a serene retreat or a place to grow, this stunning country home is the perfect canvas for your next chapter.