4
3
2843
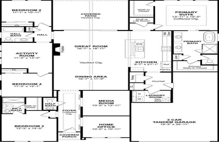
Property Description: Welcome to this incredible Geneva located in the highly sought-after master-planned community, Elevon in Lavon. This thoughtfully designed single-story home offers 4 bedrooms, 3.5 bathrooms, a private home office, media room, and a 3-car tandem garage across approximately 2,843 square feet of modern living space. Step in to an open-concept layout featuring a spacious great room with a cozy fireplace that flows seamlessly into the dining area and chef’s kitchen. The kitchen is designed for both everyday living and entertaining, complete with a large kitchen island, gas cooking suite, wall oven, and an oversized walk-in pantry. The primary suite is a true oasis, highlighted by two walk-in closets and a luxurious bath with a freestanding soaking tub and separate shower. A dedicated office with stylish double barn doors sits just off the foyer—perfect for working from home. Enjoy movie nights or game days in the separate media room, offering flexible living space for entertainment or relaxation. Outdoor living is just as impressive with a 16’ x 14’ covered patio overlooking the backyard—ideal for hosting gatherings or enjoying peaceful evenings outside. The entire community is perfectly positioned in a rapidly-growing location off Highway 78. With a vast array of impressive amenities, including a pool, walking trails, playground, and more, and a wide variety of shopping and dining set to open nearby, Elevon is the premier location to plant your roots.