3
3
2022
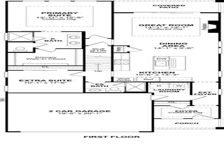
Property Description: Fabulous two-story home located at Heath Golf and Yacht Club in Heath! Laminate flooring guides you from the foyer and into the open living space boasting the kitchen, dining area, and great room. Enjoy impressive features such a kitchen island, quartz countertops, accent pendant lighting, white cabinets, and stainless steel appliances. Escape to your primary suite through a private entry off the great room. Just steps away, enjoy your spacious primary bath that has a large walk-in closet. The staircase draws you up to the second story which hosts a large loft and a secondary bedroom.