4
2
2619
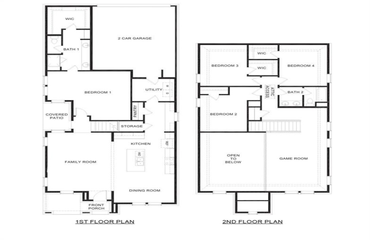
Property Description: 2 Story Open to below, 4 bedroom, 2 bath and game room, covered patio and stainless steel appliances. Lilybrooke at Legacy Hills in Celina, TX. Embrace comfortable living tailored to meet your family's needs and style. Our homes are crafted with an open layout offering a seamless flow between the living, dining and kitchen areas-perfect for entertaining and family gatherings. Step inside Lilybrooke at Legacy Hills and take a look around! Note the attention to detail in the open concept areas and cozy bedrooms and modern features.