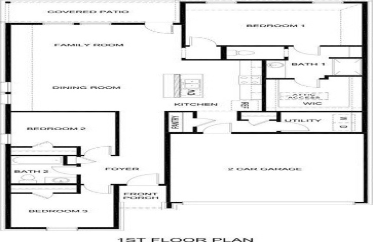
4112 Turquoise Avenue Celina, Texas 75009 Listing ID 21145922
3
2
1666
Property Description: New construction by D.R. Horton. This Elegant 3 bed 2 bath home
is situated in the neighborhood Chalk Hill just north of Celina High School. Very open concept plan, within walking distance to the high school-