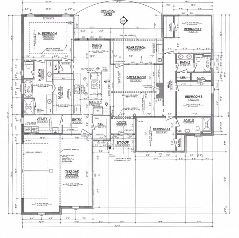
Property Description: COME MAKE THIS YOUR VERY OWN HOME SWEET HOME with 4 LARGE bedrooms & THREE Full Bathrooms on nearly TWO acres with a private water well (no water bills) and NO HOA! Contract soon to be part of selecting the finishes to make this new home UNIQUELY YOURS! Enjoy the peaceful surroundings of STONE CREEK RANCH! Experience Luxury when you enter through the front door of this BEAUTIFUL home and immediately feel the immenseness of the GREAT OPEN-FLOOR PLAN DESIGN with split bedroom arrangement. Stunning kitchen will have beautiful counters & cabinets and a HUGE walk-in PANTRY; oversized luxurious master suite & en-suite features large tub & separate shower along with two beautiful vanities & a huge walk-in closet; LARGE secondary bedrooms; the SECOND SUITE HAS ITS VERY OWN PRIVATE BATH; fantastic closets; a beautiful fireplace to enhance the family room; huge utility room offering great storage; & a functional mud bench area for organization. Builder warranty & 2-10 Home StrucSure Warranty Provided. Estimated completion March 2026. Images are the graphic art work images from floorplan, not the actual home. Modifications may occur. More photos to be updated as construction progresses.