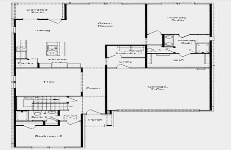
Property Description: What's Special: Includes Landscape - Covered Patio - Flex Room - Close to Amenities. New Construction - February Completion! Built by Taylor Morrison, America's Most Trusted Homebuilder.Welcome to the Georgetown at 2309 Buffalo Bayou Way in River Ridge. This spacious home is designed for comfort and versatility. The kitchen, complete with a center island, flows into the dining area and expansive great room, perfect for hosting gatherings or enjoying quiet evenings. Step out to the covered patio and savor a peaceful setting that blends indoor and outdoor living. On the main level, the private primary suite offers a relaxing retreat and features an en-suite bath with dual sinks and a walk-in closet. A secondary bedroom, full bath, and flex room are conveniently located off the foyer. Upstairs, you’ll find two additional bedrooms, a full bath, a tech area, a generous game room, and extra storage for all your needs. Discover River Ridge in Crandall, TX, where wide open spaces meet a welcoming community. Here, neighbors become friends, and life feels connected. Enjoy beautiful streetscapes and outstanding amenities, including an amenity center for social gatherings, a shimmering resort-style pool, a playground for little ones, and a stocked pond for fishing. With easy access to Highway 175, Dallas and Kaufman are just a short drive away, making River Ridge the perfect blend of serenity and convenience. Additional Highlights Include: GE reiterator, GE top loader washer and dryer, and whole house blinds. Photos are for representative purposes only. MLS#21134033