4
3
3299
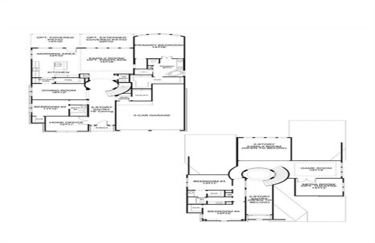
Property Description: Grand two-story entry features circular staircase. Home office with French doors. Two-story family room features a wood mantel fireplace and opens to the island kitchen and morning area. Kitchen offers a large pantry and Butler's pantry, and a 5-burner gas cooktop. Downstairs primary suite has curved wall of windows. Primary bath with a double vanity, a freestanding tub and separate glass-enclosed shower. Lots of shelf space in the primary closet. Upstairs hosts a game room and an adjoining theatre room. Extended covered backyard patio. Mud room just off the three-car garage.