4
2
1753
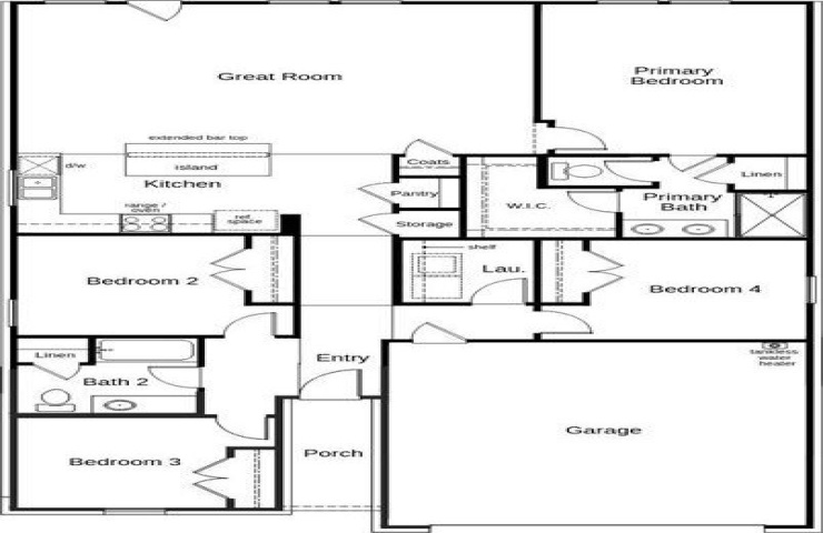
Property Description: This charming home, situated on a premium lot with no rear neighbors, offers a functional open-concept kitchen and great room ideal for everyday living and entertaining. It features 4 bedrooms, 5-panel interior doors, and whole-house cabinetry. The kitchen includes an upgraded island with extended breakfast bar, stainless steel appliances, quartz countertops, decorative backsplash, gas range, and a 12 in cabinet above the refrigerator. The primary bath has a 36 in raised quartz vanity, tile-surrounded shower, and elongated toilet. Outside, enjoy a brick front, extended patio, and gas hookup for BBQ. Additional amenities include a spacious primary closet, ceiling fans in all rooms, garage door opener, Kwikset smartkey entry, plus phone and cable inputs.