4
3
2999
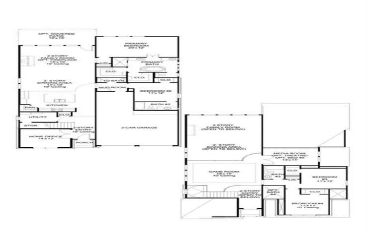
Property Description: Home office with French doors set at two-story entry. Open kitchen hosts inviting island with built-in seating space and a 5-burner gas cooktop. Two-story dining area opens to two-story family room with wall of windows and a wood mantel fireplace. Hardwood floors throughout main living area. First-floor primary suite with wall of windows. Dual vanities, garden tub, separate glass-enclosed shower and two walk-in closets in primary bath. A guest suite with full bath is downstairs. Secondary bedrooms, a game room and media room with French doors are upstairs. All bedrooms include walk-in closets. Covered backyard patio. Mud room off three-car garage.